株式会社
今井建設
IMAI Construction
資料請求・お問い合わせ
無料相談
資料請求
無料相談
HOME
施工事例一覧
設計プラン集
パーツギャラリー
お客様の声
イベント・見学会
ブログ
会社案内
家づくりの流れ
HUIZENー提案型注文住宅
コンセプト
家づくりに対する想い
快適さと健康
安心と安全
暮らしやすさ
相談会
お問い合わせ
プライバシーポリシー
サイトマップ
2000
万円以下の設計プラン
Home
2000万円以下の設計プラン
定番2階建てプラン
25坪~30坪
吹抜のある3LDKの家
平屋プラン
20坪以下
20坪~25坪
25坪~30坪
30坪以上
1.5階建ての平屋プラン
20坪以下
20坪~25坪
25坪~30坪
30坪以上
定番2階建てプラン
20坪~25坪
25坪~30坪
30坪~35坪
35坪~40坪
大きめ&二世帯プラン
吹抜のある3LDKの家
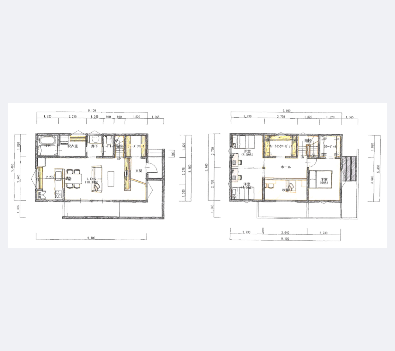
吹抜のある3LDKの家
坪数
28.06坪
間取
3LDK
設計プラン一覧に戻る
無料プラン作成依頼
お客様のご要望に対する設計プランを作成させていただきます。
もちろん、無料にて作成させていただきますのでご安心ください。