株式会社今井建設

LINTJEリンチェ

近代建築の巨匠、ル・コルビュジエが好んで使用した水平連続窓-リボン・ウィンドウ。「リボン」という意を冠するLINTJEには、広々としたリビングダイニングの目の前を横切る、開放的な縁側がある。ガラスの向こうに配置された様々なインテリア空間とそこで起こるアクティビティが、縁側が創る水平線上に連続し、LINTJEという家に色彩豊かで愛らしい表情を与えていくだろう。

PLAN DATA

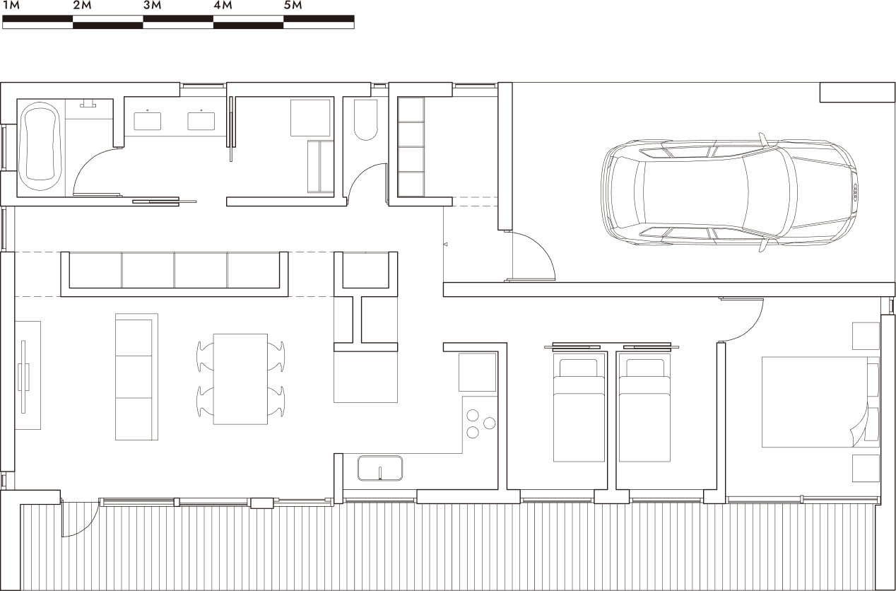
LINTJEのインナーガレージ付3LDKファミリープラン。家全体を横断する幅広の縁側と、それに沿って並ぶ一連の内室とが美しい水平線を創る。太陽の光を目一杯受け取る大開口面と、その反対側に集まる水回りとの間には、LINTJEの核となる「収納廊下」が走る。収納とレーベルされた小さな部屋ではなく、建築意匠として確かな存在感を放つ様に計画された収納廊下は、機能的にもインテリア的にも全く異なる二つのゾーンを明瞭に区分し、各ゾーンにおいての居心地を一層際立たせる立役者となる。※規格住宅ではありません 
※この間取りは参考プランです

LINTJE_PLAN 01
3LDK

住宅床面積
76.00㎡/23.00坪
デッキ
21.00㎡/6.25坪
ガレージ
21.00㎡/6.25坪